ID CP1485536

Apartament 3 camere, etaj 7, decomandat, zona TRAIAN - BCR;

ID CP1485536

87,500 € (negociabil)

Apartament cu 3 camere de vânzare
Traian, Vaslui
84 mp
1990

Agenția imobiliară Ambient intermediază vânzare apartament cu 3 camere, situat în zona TRAIAN, cu următoarele caracteristici:

- etaj 7, cu lift modernizat;

- camere decomandate;

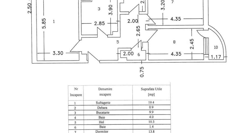
- suprafață utilă totală - 84 mp;

- 2 balcoane, 2 băi;

- centrală termică, ușă metalică;

- parțial tâmplărie PVC cu geam termopan;

- termoizolație exterioară;

- clasa energetică "B".

Se acceptă plata prin credit ipotecar; Pentru detalii si vizionare Tel. 0743.686382;

Citește mai mult

  • Tip apartament
    Apartament
  • Compartimentare
    Decomandat
  • Număr camere
    3
  • Număr băi
    2
  • Geam la baie
    Da
  • Etaj
    7
  • Suprafață utilă
    84 mp
  • Suprafață construită
    103 mp
  • Disponibilitate
    Imediat
  • Orientare
    Sud-Est
  • Confort
    1
  • Stare interior
    Finisat clasic
  • Număr balcoane
    2
  • Imobil
    Bloc de apart.
  • Stadiu construcție
    Finalizată
  • An construcție
    1990
  • Număr etaje clădire
    8
  • Cadastru
    Există
  • Intabulare
    Există
  • Mod de dobândire
    Contract
  • Certificat Energetic
    Există
  • Clasă Energetică
    B

Facilități

Acoperiș
Calorifere
Centrală proprie
Faianță
Ferestre lemn
Ferestre PVC
Geamuri termopan
Gresie
Izolație exterioară
Magazie
Nemobilat
Parchet laminat
Ușă intrare metal
Uși interior MDF
Vopsea lavabilă
Marius Bobeica - Agenția imobiliară AMBIENT
Marius Bobeica
Manager

0743686382


Solicită chiar acum o vizionare
Telefon
Sună acum Solicită vizionare
Necesare:

Site-ul nu poate funcționa corect fără aceste cookie-uri. Vezi cookie-urile

Statistică:

Strângem statistici anonime despre voi, vizitatorii unici, pentru a vă îmbunătăți experiența dumneavoastră. Vezi cookie-urile

Marketing:

Pentru a ne promova mai eficient serviciile noastre, folosim cookies pentru a vă identifica și a vă oferi proprietăți și servicii personalizate. Vezi cookie-urile

Acest site folosește cookies, află detalii. Alege ce tipuri de cookies dorești să permitem: